Home Page Image

Unsere Wohnungen

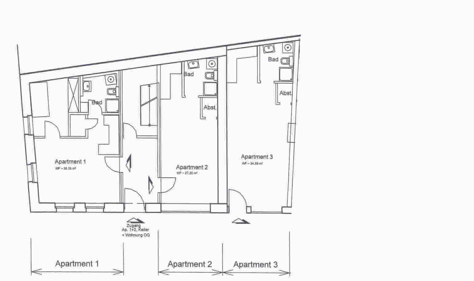
Den Grundriss der Wohnungen sehen sie hier.


Apartment 1 Apartment 2

Apartment 3

Bilder

       
   
     
Copyright & Design by: www.ahrcomp.de